Historie der Brandmelderzentralen
BZ 1028 / 1056 / 1168
-Einsatz ab ca. 1980-
Ansichten der BZ 1028 und BZ 1056


Baugruppenübersicht
Link zu uebersichten.pdf
Funktion der Zentrale
Link zu funktionen.pdf
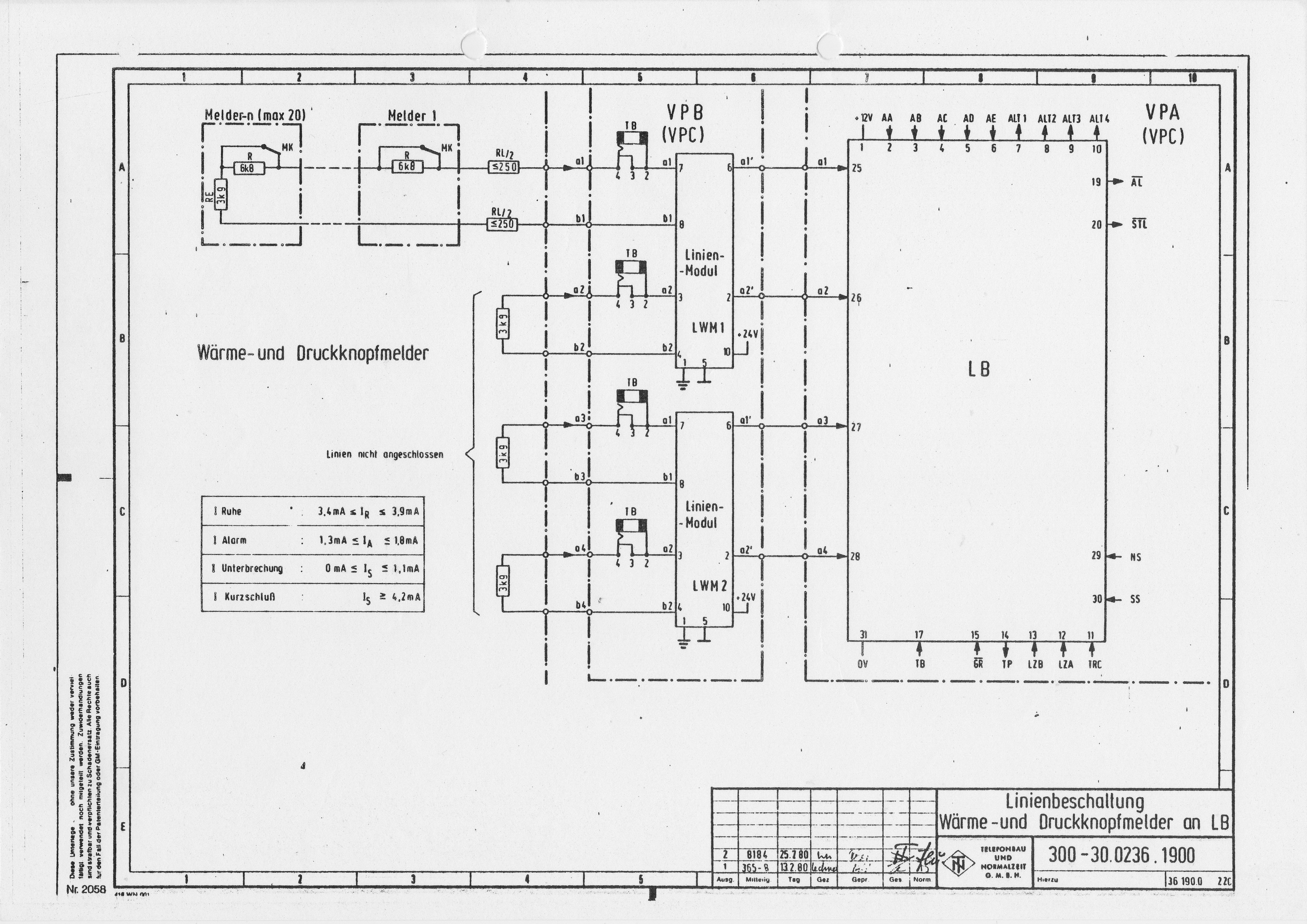
Beispiel einer Linienanschaltung

Weitere Linienanschaltungen
Link zu linienbeschaltungen.pdf
Hinweis zur BZ 1056 LB: der Zusatz LB bedeutet mit "Löschbereichsansteuerung"
BZ 1168
-Einsatz ab ca. 1980-
Brandmelderzentrale BZ 1168

Produktinformation PI 32.44 Brandmelderzentrale BZ 1168 (Juli 81):
Link zu pi_bz_1168.pdf